Vismarkt, Groningen

Centrum

Beschikbaar
3 kamers2 slaapkamers43
6.69

Wil je meer bezichtigingen?

Huurmatcher vindt razendsnel al het nieuwe aanbod van Nederland, vinden we iets voor jouw ontvang jij als eerste een notificatie via WhatsApp of onze app.

138 huizen gevonden in Groningen en omgeving in de laatste 2 weken

23 uur geledenrecent house

Poelestraat

Centrum

60 m²€1240
23 uur geledenrecent house

Friesestraatweg

Hoogkerk

22 m²€1149
recent house

Friesestraatweg

Hoogkerk

22 m²€1150
recent house

Galjoen

Meerstad

140 m²€1750
recent house

Steenhouwerskade

Oud-Zuid

84 m²€1099
recent house

Lopendediep

Centrum

35 m²€950
recent house

Eelkemastraat

Zuidoost

67 m²€1172
recent house

Kleine Rozenstraat

Centrum

49 m²€1320
recent house

Pelikaanstraat

Oosterparkwijk

115 m²€1595
recent house

Zaagmuldersweg

Oosterparkwijk

46 m²€1075

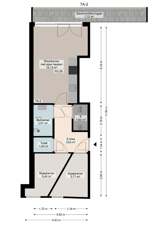
Per 01-01-2026 komen er drie appartementen met twee slaapkamers beschikbaar aan de Vismarkt 7A-2 in Groningen. Locatie: De appartementen zijn gelegen in de binnenstad van Groningen en bieden daarmee een perfecte woonlocatie. De stad beschikt over een breed scala aan winkels, restaurants, cafés en cu

Eigenschappen

  • 43
  • 2 slaapkamers
  • 3 kamers
  • Niet gemeubileerd
  • A+++
Waarschuwing! Deze woning staat al meer dan 2 uur op de markt. Het is waarschijnlijk al verhuurd, omdat vaak honderden mensen reageren.

1409/ maand

Let op! Wij zijn niet de makelaar van deze woning. Je kan op de makelaarswebsite reageren.

Huur(per maand)
1409
Totaal per maand
1409
Let op: wij proberen zoveel mogelijk huizen door te sturen die aan je wensen voldoen. Soms kan het gebeuren dat we wat info missen, dus we sturen hem voor de zekerheid alsnog op. Je kunt altijd je filters in je account aanpassen.